15 Ponting Street Williamstown, VIC 3016
- Floor Area
- 802m²
- Price
- Contact Agent
Agents
Ben Quennell
0499 903 905
bq@andproperty.com.au
Joff Mithen
0430 759 406
jm@andproperty.com.au
Arrange an
Inspection
Inspection
Brand New - Office Warehouse Available to Lease - Available Now!
AND Property are excited to present 15 Ponting Street, Williamstown, for lease.Located in Williamstown’s tightly held industrial precinct, this brand new industrial offering provides immediate access to Kororoit Creek Road and in-turn Princess Freeway/Westgate Freeway and Western Ring Road.
AND the Property Details:
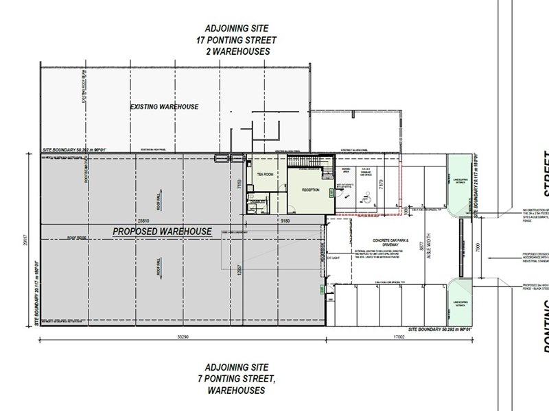
& Total land area: 1,012m²*
& Total building area: 802m²*
& Total ground floor area: 672m²*
& Total first floor office area:130m²*
& Clear-span warehouse with internal clearance of 8m*
& Container height RSD
& Staff amenities on both ground and first floor
& Shower facilities
& Ducted heating and cooling
& Open plan first floor office
& Reception/ Showroom
& Security fencing with motorized gate access
& On-site parking for 9 cars
& 3 phase power
& Anticipated completion Q4 2025
& Industrial 1 Zoning
AND the location overview:
& 3.4 km* from the Westgate Freeway on and off ramps
& 6.3 km* from the Princess Freeway on and off ramps
& 9.5 km* from the CBD
& 7.3 km* from the Port of Melbourne
For further information please contact the appointed team at AND Property.
https://andproperty.com.au/
Approx*
Disclaimer:
AND Property has taken reasonable care to ensure the accuracy of the information provided in this listing. However, we do not warrant or guarantee its correctness and disclaim all liability for any errors, omissions, or inaccuracies. All interested parties should conduct their own independent due diligence, including verifying all measurements, zoning, planning approvals, and other details that are material to their decision-making. Information is subject to change without notice.
Sizes and Measurements
- Floor Area
- 802m² Approx
- Land Area
- 1,012m² Approx
Pricing Information
- For Lease
- Contact Agent